1300 Homes
Welcome to 1300 Homes!
0419 487 187
sales@1300homes.com.au
Home
About Us
Designs
Our Process
Our Locations
Our Inclusions
FAQ
Contact Us
Home
About Us
Designs
Our Process
Our Locations
Our Inclusions
FAQ
Contact Us
Call us 0419 487 187
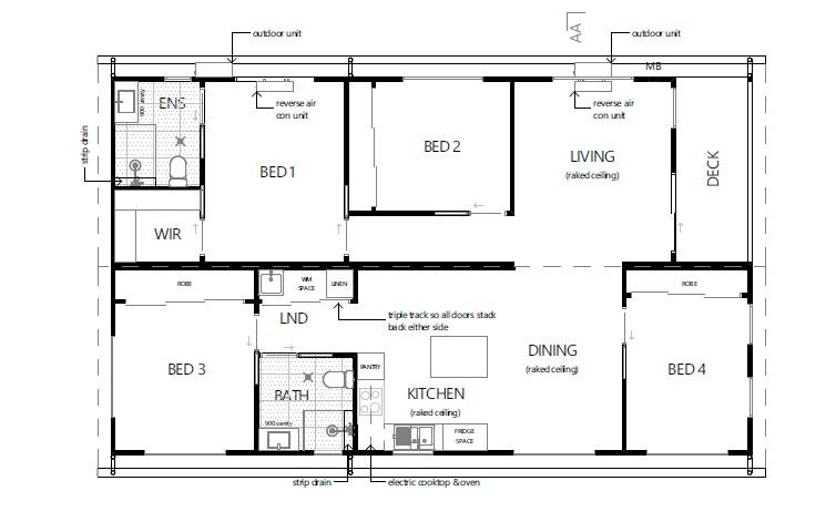
4 Bed Gable
Length: 14.25
Width: 8.4
M2: 119.7
Modules: 2
Price Ex-Factory: $383,040
RECENT PROJECTS
3 Bed Tory
3 Bed Sidney
4 Bed Ralph
Download brochure
CONTACT DETAILS
0419487187
sales@1300homes.com.au