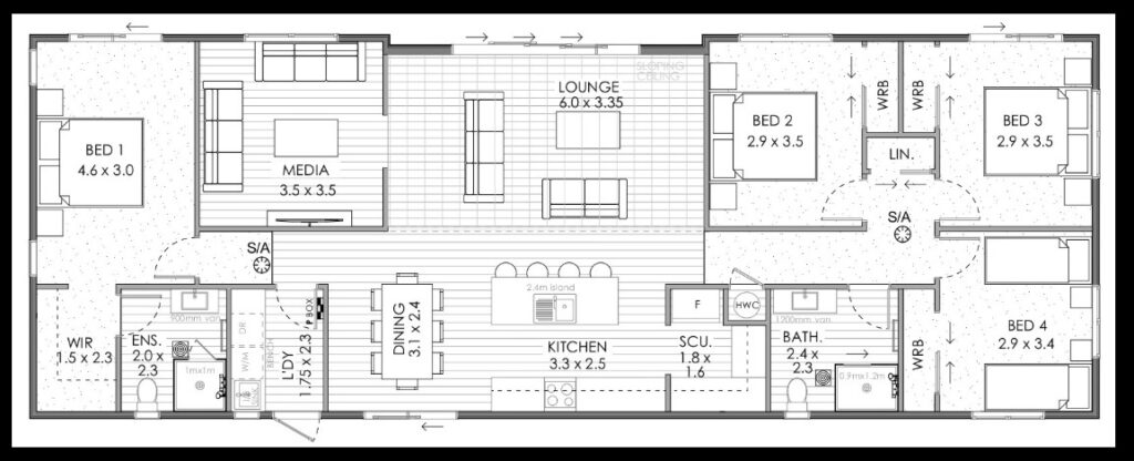
1300 Homes

4 Bed Coogee