1300 Homes

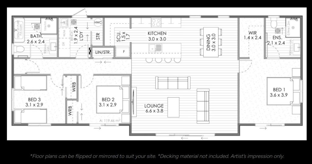
3 Bed Kawana